AIME IMMOBILIER Agence
Télécharger la fiche

Murs commerciaux 272 m²

Aime-la-Plagne (73210)
545 700 € HT* * HT : Hors Taxes Référence 19826-C5

A propos de ce bien

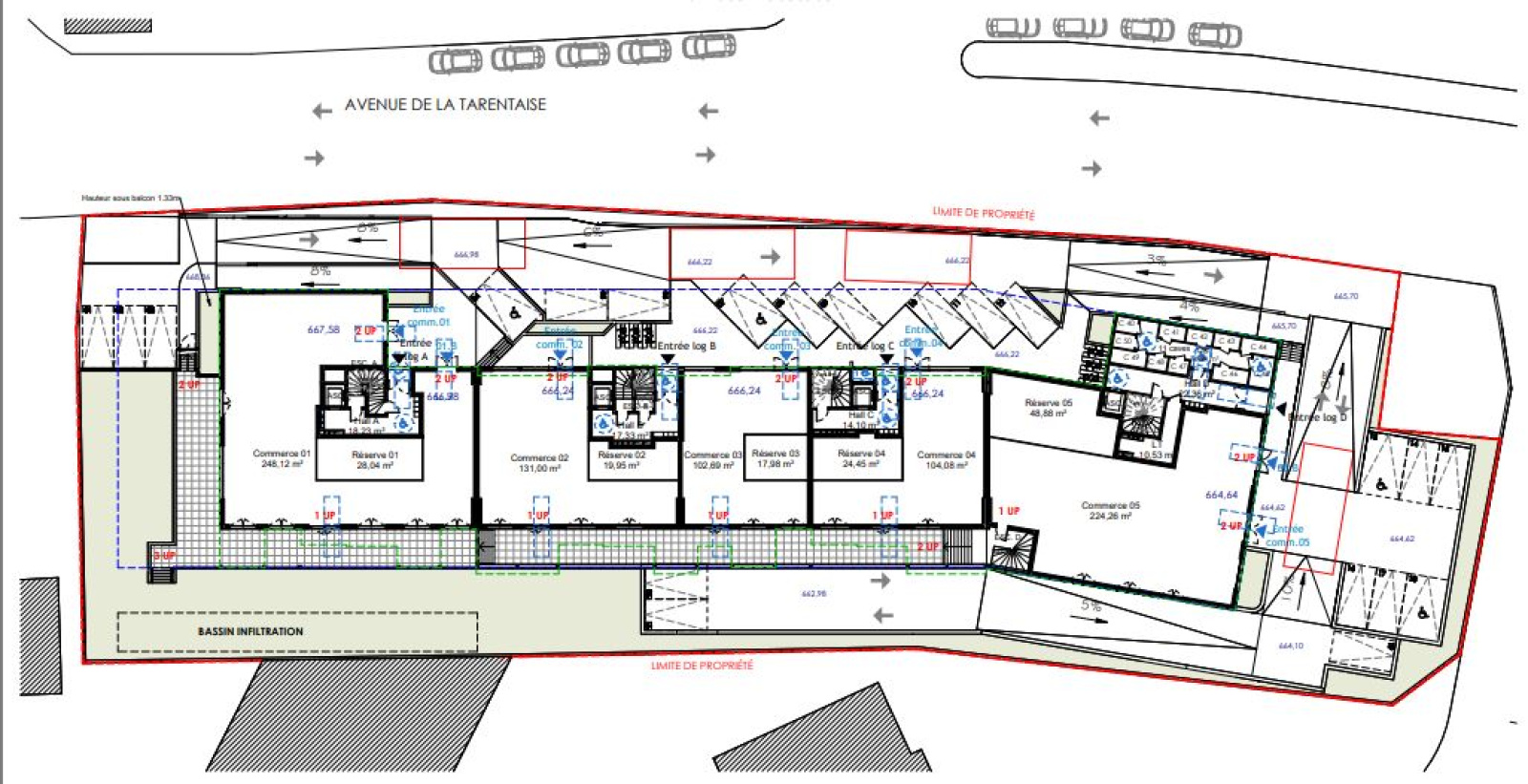
A vendre en VEFA (pré-commercialisation), commerce n°5 au sein de la Résidence PARADIS située à AIME LA PLAGNE.

Emplacement stratégique en rez-de-chaussée, en pied de résidence, offrant accessibilité directe !

Surface commerciale : 224,26m² + réserve : 48,88m²

Configuration parfaitement adaptée pour :

- Supérette/commerce alimentaire et de proximité

- Commerce multi-services

- Activité tertiaire ou profession libérale

- Regroupement d'activités

Volumes permettant une organisation optimisée : surface de vente, zone caisse, réserve et stockage distincts.

Restauration, bar et activités assimilées non-autorisées.

Livraison en éta brut :

- Mus béton brut

- Plafonds isolés (R=4m²°C/W)

- Sol béton brut

- Vitrines aluminium

- Attentes techniques : eau, EV, EU, fourreaux électriques et télécoms

Aménagement intérieur, chauffage, ventilation et raccordements définitifs à la charge du Preneur.

Enseignes réglementées selon prescriptions Mairie et validation architecte.

Possiblité d'acquérir des places de stationnement privatives en supplément.

PRIX : 545 700€ HT

Frais de notaire réduits à 2,2%

Caractéristiques de ce bien

Activités

  • Type de transaction Murs commerciaux

Agencement

  • Superficie m2 272 m²
  • Vitrine(s) OUI

Equipements

  • Chauffage individuel : autre (autre)

Secteur

  • Code postal 73210
  • Ville Aime-la-Plagne

Calcul des mensualités

* Champs obligatoires

Diagnostics énergétiques

DPE
GES
DPE non concerné

Informations financières

Prix de vente HT honoraires inclus 545 700 €