AIME IMMOBILIER Agence
Télécharger la fiche

Murs commerciaux 150 m²

Aime-la-Plagne (73210)
301 760 € HT* * HT : Hors Taxes Référence 19826-C2

A propos de ce bien

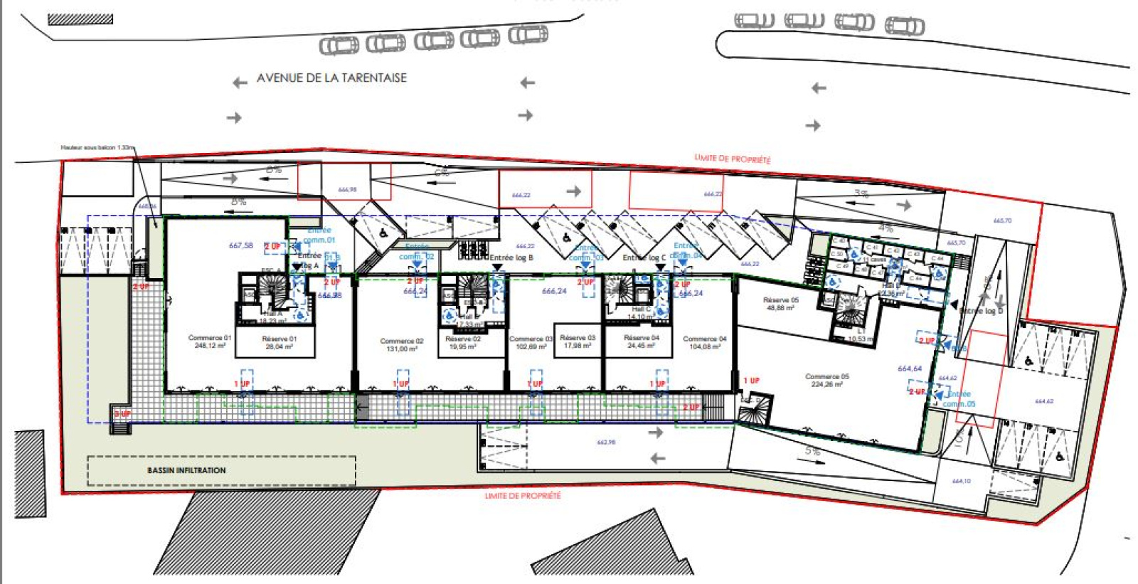
A vendre en VEFA (pré-commercialisation), commerce n°2 au sein de la Résidence PARADIS située à AIME LA PLAGNE.

Local en rez-de-chaussée, bénéficiant d'une bonne visibilité en pied d'immeuble.

Traversant, avec accès direct et terrasse exposée Sud.

Surface commerciale de 131m² + réserve de 19,95m²

Configuration idéale permettant un aménagement modulable et un éventuel partage du local entre plusieurs professionnels :

- Regropement de professions médicales et paramédicales

- Activités bien-être et beauté

- Bureaux, professions libérales ou services

- Supérette/commer alimentaire de proximité (hors restauration sur place)

Activités non-autorisées : restaurant, bar et activités assimilées

Livraison en état brut :

- Murs béton brut

- Plafonds isolés (R=4m²°C/W)

- Sol béton brut

- Vitrines alu

- Attente technique : eau froide, EU, EV, fourreaux électriques et télécom

Raccordements définitifs, aménagement intérieur, chauffage et ventilation à la charge du Preneur.

Enseignes réglementées selon prescriptions mairie et validation architecte.

Possibilité d'acquérir des places de stationnement privatives en supplément selon disponibilités.

PRIX : 301 760€ HT

Frais de notaire réduits à 2,2%

Dossier complet sur demande !

Caractéristiques de ce bien

Activités

  • Type de transaction Murs commerciaux

Agencement

  • Superficie m2 150 m²
  • Vitrine(s) OUI

Equipements

  • Chauffage individuel : autre (autre)

Secteur

  • Code postal 73210
  • Ville Aime-la-Plagne

Calcul des mensualités

* Champs obligatoires

Diagnostics énergétiques

DPE
GES
DPE vierge

Informations financières

Prix de vente HT honoraires inclus 301 760 €